
风淋传递窗在医疗器械生产环境中的应用
风淋传递窗在医疗器械生产环境中的应用
风淋传递窗在医疗器械生产领域,产品的质量和安全性至关重要。风淋传递窗作为一种高效的洁净室辅助设备,风淋传递窗在医疗器械生产环境中扮演着不可或缺的。以下将详细阐述风淋传递窗在医疗器械生产环境中的应用及其重要性。
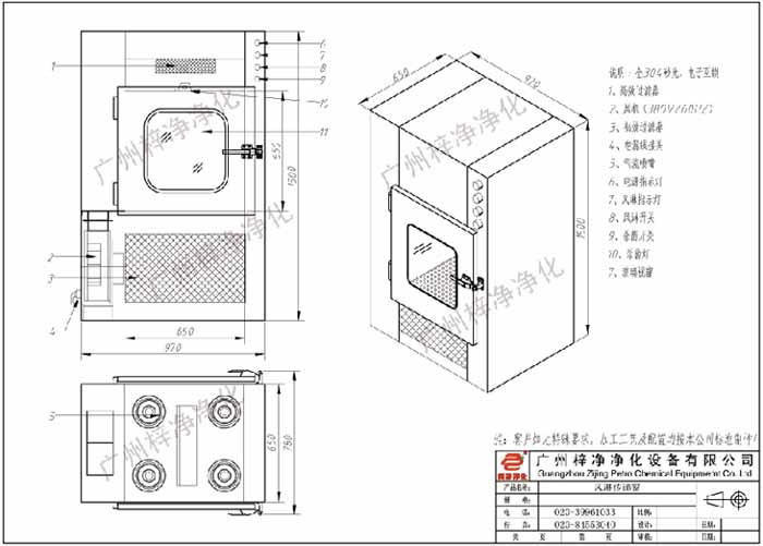
一、风淋传递窗的作用
防尘:风淋传递窗通过高速气流对进入洁净室的人员和物品进行吹淋,有效去除其表面的尘埃和微生物,降低洁净室内的污染风险。
隔离:风淋传递窗可以隔离不同洁净度级别的区域,防止污染物的交叉污染,确保医疗器械生产环境的洁净度。
传递:风淋传递窗方便洁净室内外物品的传递,减少人员流动,降低交叉感染的风险。
二、风淋传递窗在医疗器械生产环境中的应用
洁净度控制
医疗器械生产对洁净度要求极高,风淋传递窗的应用有助于维持生产环境的洁净度。根据GB12693-2010《医疗器械生产质量管理规范》的要求,风淋传递窗应满足以下洁净度标准:
空气流速:应达到30-50米/秒,确保有效去除尘埃。
过滤效率:风淋传递窗配H14高效过滤器,过滤掉0.5微米及以上的尘埃。
结构设计
风淋传递窗的结构设计应符合医疗器械生产环境的特殊要求:
材料选用:应使用耐腐蚀、易于清洁和消毒的材料,如不锈钢。
密封性能:确保传递窗的密封性能良好,防止尘埃和微生物的渗透。
操作规范
在使用风淋传递窗时,应遵循以下操作规范:
操作人员应经过专业培训,了解风淋传递窗的操作流程和注意事项。
传递物品时应轻拿轻放,避免产生尘埃。
风淋过程中,操作人员应避免直接触摸传递窗内部表面。
维护保养
为确保风淋传递窗的长期稳定运行,应进行定期维护保养:
定期检查:检查传递窗的密封性、气流速度和过滤效率。
清洁消毒:定期对传递窗进行清洁和消毒,防止细菌滋生。
更换过滤器:根据实际情况更换过滤器,确保过滤效果。
三、总结
风淋传递窗在医疗器械生产环境中发挥着重要作用,风淋传递窗应用有助于提高生产环境的洁净度,保障医疗器械产品的质量和安全性。因此,在医疗器械生产过程中,应高度重视风淋传递窗的选用、操作和维护保养,以确保生产过程的顺利进行。