
风淋传递窗的功能与原理
风淋传递窗的功能与原理
在洁净室、电子厂房等对环境洁净度要求极高的场所,风淋传递窗作为一种重要的空气净化设备,风淋传递窗功能与原理至关重要。以下是关于风淋传递窗的功能与原理的详细介绍。
一、风淋传递窗的功能
空气净化:
风淋传递窗能够有效地过滤进入室内的空气,去除空气中的尘埃、细菌等微粒,保证洁净室内的空气洁净度。
防止污染:风淋传递窗可以在人员和物品进入洁净室前进行初步的空气净化,从而防止外部污染进入室内。
减少交叉污染:风淋传递窗通过气流的作用,减少操作人员在进入洁净室时携带的微生物和尘埃,降低交叉污染的风险。
提高工作效率:风淋传递窗可以快速实现对物品和人员的空气净化,缩短进入洁净室的时间,提高工作效率。

二、风淋传递窗的原理
气幕效应风淋传递窗通过高速气流形成气幕,使气流在传递窗两侧形成一定压力,阻止外部空气和污染物进入洁净室。
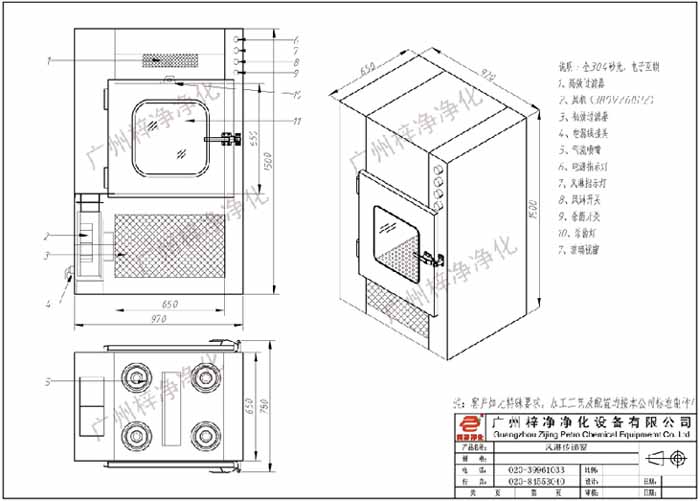
过滤净化:传递窗内部装有高效过滤器和喷嘴,对进入的空气进行过滤,确保送入洁净室内的空气达到一定的洁净度。
空气流动:当人员或物品通过传递窗时,风淋传递窗会自动启动,形成垂直向下或水平向外的气流,将人员和物品表面的尘埃和污染物吹离。
快速关闭:风淋传递窗在人员或物品通过后,会迅速关闭,防止未经过滤的空气进入洁净室。

风淋传递窗的具体工作原理如下:
启动阶段:当人员或物品准备进入洁净室时,按下传递窗的启动按钮,风淋传递窗开始工作。
气流形成:风淋传递窗高效过滤器启动,产生高速气流,形成气幕,阻止外部空气进入。
空气净化:风淋传递窗通过高效过滤器过滤后的空气,对人员和物品进行净化。
通过阶段:人员和物品通过风淋传递窗,气流将表面污染物吹离。
关闭阶段:人员和物品通过后,风淋传递窗自动关闭,阻止未经过滤的空气进入洁净室。

总之,风淋传递窗作为一种重要的空气净化设备,在洁净室等对环境洁净度要求极高的场所中发挥着重要作用。了解风淋传递窗功能与原理,有助于提高洁净室的管理水平和空气质量。


全自动传送窗|机器人机械臂传递窗
高端风淋室|满焊接风/货淋室
超净工作台
可移动式洁净棚
装配式洁净棚
不锈钢FFU
冷板烤漆FFU过滤单元
镀铝锌板FFU